Liên hệ
Chị Nguyễn Thị Hương Giang Hà Nội Đối tác tư vấn đầu tư khu vui chơi giải trí 04.07.2024
Mã KH:KB24HG01
Người phụ trách tư vấn: Phạm Thị Hồng Tươi, Vũ Thị Thu
Người phụ trách thiết kế: Phan Cường, Bùi Doanh
Gói tư vấn đầu tư thiết kế 3D khu vui chơi khách hàng lựa trọn: Gói vàng
Ảnh kết nối online cùng khách hàng đầu tư khu vui chơi
............
Hình thực tế hiện trạng mặt bằng setup xây dựng khu vui chơi giải trí:




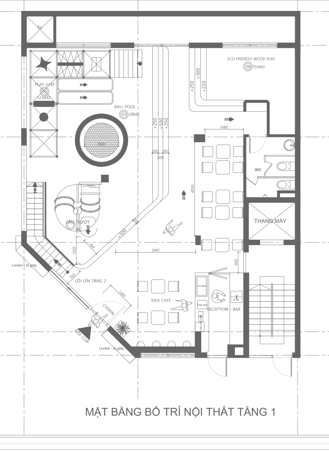
Layout quy hoạch tổ chức khu vui chơi giải trí với trên hiện trạng mặt bằng 1 tầng.

Hình ảnh thiết kế Đồ họa 3D khu vui chơi giải trí hoàn thiện.



Link video thiết kế 3D khu vui chơi giải trí hoàn thiện.
Hình ảnh khách hàng về xưởng lựa trọn vật liệu và thăm quan nhà xưởng khu vực sản xuất online và thực tế.

Link báo giá chi tiết hoàn thiện khu vui chơi giải trí trọn gói
.....
Link hồ sơ bản vẽ kỹ thuật hoàn thiện thi công dự án khu vui chơi giải trí.
Người phụ trách : ....
....
Link kế hoạch sản xuất và lịch thi công hoàn thiện dự án khu vui chơi giải trí
Người phụ trách : ....
.....
Tổng diện tích dự án:
Tầng thi công dự án: tầng 1
Link Cập nhật đội nhóm phụ trách thi công dự án....
Người phụ trách : ....
.....
Hình ảnh và Link video sản xuất thực tế đối với dự án khu vui chơi :
......
Hình ảnh kho hàng bốc xếp vận chuyển hàng hóa tới dự án khu vui chơi giải trí.
.....
Hình ảnh link video thi công lắp đặt hoàn thiện khu vui chơi giải trí.





Ý kiến khách hàng về mức độ hoàn thiện hài lòng về dự án khu vui chơi giải trí khi lựa trọn Đồ chơi kinh bắc
....
Hình ảnh tặng hoa , link video hình ảnh khu vui chơi khai trương vận hành.
Khu vui chơi giải trí Gina Kid's Playground Gamuda Hà Nội




Links tiếp nhận thông tin tiếp nhận đặt vé, đặt tiệc online tại khu vui chơi giải trí
.....
Link Hồ sơ hoàn công phát sinh và bảo hành bảo trì hỗ trợ dự án khu vui chơi giải trí.
Người phụ trách : ....
Điểm qua đôi nét về văn hóa lịch sử:
Chúc quý khách sức khỏe và nhiều niềm vui!


Bạn đã thêm vào giỏ hàng 